氣動V型調節球閥
一、簡介說明:
ZSHV系列氣動V型調節球閥是一種芯閥座采用金屬,或金屬對聚四氟乙烯密封配合的旋轉球閥,它將球閥和蝶閥的控制特性結合成一體,既可用作控制調節閥,又可作關斷切斷閥。
一、應用領域:
ZSHV系列氣動V型調節球閥,球芯呈V形狀,可實現 線性調節,可調范圍大。當閥門關閉時,V型缺口與閥座之間產楔形剪切作用,既具有自潔功能又能防止球芯卡死,特別適用于管線結垢凍結場合。氣動V型球閥適宜于控制紙漿、污水,含有纖維和顆粒固體懸浮介質及粉粒狀介質。配用的氣缸活塞式執行機構,結構簡單,輸出力矩大。本系列球閥按密封性能分為軟密封和硬密封;按調節方式分為調節型和切斷型,切斷型按作用形式分單作用和雙作用式,調節型為雙作用式。單作用式的******優點是一旦動力源發生故障,球閥將按控制系統的要求自動處于關閉或開啟位置。產品廣泛應用于電力、石油、化工、造紙、輕紡、食品、制藥、航空航天等領域。
三、氣動V型調節球閥的主要特點:
1、是一種直角回轉結構的高級控制閥。V型球閥長期不需修理,使用壽命長,為您提供了真正的有效率進行控制工藝狀況的一種閥門。
2、具有出色的調節特性:V型閥具有一個近似等百分比的固有流量特性及高達300:1的可調比。因此V型閥可以在廣幅的變化范圍內提供準確的控制。
3、***大流動容積:由于它的流線型外形以及滿直角回轉控制緣故,使容積的***大值特別高,通能力特別大,流通阻力小,因此可以使用較小的更加經濟實用的閥門尺寸。
4、V型閥采用雙軸承結構,機械穩定性高,啟動扭矩小,保證了閥門具有******的靈敏度和感應速度。
5、***大可靠(安全)性:閥體為一個整體結構,堅固耐用,操作不受管道壓力影響,并可避免閥體滲漏。
6、金屬閥座的******密封性:V型閥采用可動金屬閥座,具有的助補償功能,并具有******密封性能及超長的使用壽命。在流向上,泄漏量10額定流量系數。
7、超強的剪切能力:V型閥采有金屬硬密封結構,V型閥芯及金屬閥座在回轉過程中,V型缺口與閥座產生一個強大的剪切力能切斷纖維等雜質,并具有自潔功能,避免閥門卡死現象發生。
8、氣動V型球閥結構緊湊,小巧輕盈,安裝方便,維護簡便。
9、氣動執行機構采用活塞式氣缸及曲臂轉換結構,輸出力矩大,體積精小。執行機構采用全密封防水設計防護等級高。氣缸體采用進口鏡面氣缸,無油潤滑,磨擦系數小、耐腐蝕、具有超強的耐用性及可靠性。所有傳動軸承均采用邊界自潤滑軸承無油潤滑,確保傳動軸不摩損。
四、氣動V型調節球閥的執行標準:
1、設計與制造:GB12237-89、API608、API 6D、JPI 7S-48、BS5351、DIN3357。
2、法蘭尺寸:JB/T74~90(JB74~90)、GB9112~9131、HGJ44~76、SH3406、ANSI B16.5、JIS B2212~2214、NF E29-211、DIN2543。
3、結構長度:GB12221-89、ANSI B16.10、JIS B2002、NF E29-305、DIN3202。
4、檢驗主試驗:JB/T 9092、API 598。
五、執行機構:
采用新型系列GT型氣動執行器,有雙作用式和單作用式(彈簧復位),齒輪齒條傳動,安全可靠;大口徑閥門采用系列AW型氣動執行器拔叉式傳動,結構合理,輸出扭矩大,有雙作用式和單作用式。
1、齒輪式雙活塞,輸出力矩大,體積小。
2、氣缸選用鋁金材料,重量輕、外形美觀。
3、可在頂部、底部安裝手動操作機構。
4、齒條式連接可調節開啟角度、額定流量。
5、執行器可選帶電訊號反饋指示及各類附件以實現自動化操作。
6、IS05211標準連接為產品的安裝更換提供了方便。
7、兩端調的節螺釘可使標準產品在0°和90°有±4°的可調范圍。確保與閥門的同步精度。
附件的選項:
根據不同控制和要求可選擇下列附件:
切斷型附件:單電控電磁閥、雙電控電磁閥、限位開關回訊器。
調節型附件:電氣定位器、氣動定位器、電氣轉換器。
氣源處理附件:空氣過濾減壓閥、氣源處理三聯件。
手動機構:HVSD手操機構
六、技術參數和性能:
型式 | 直通式鑄造球閥 | |||||||||||||
公稱通徑DN | 25 | 32 | 40 | 50 | 65 | 80 | 100 | 125 | 150 | 200 | 250 | 300 | 350 | 400 |
閥座直徑 | 20 | 26 | 33 | 40 | 53 | 66 | 86 | 104 | 128 | 170 | 212 | 255 | 300 | 340 |
額定流量系數Kv | 25 | 36 | 63 | 100 | 184 | 280 | 400 | 600 | 950 | 1540 | 2500 | 3900 | 6150 | 9800 |
公稱壓力PN | PN1.6 6.4MPa | |||||||||||||
泄漏量 | 軟密封:≤1.8×10-7×△P×DN.1/h(試驗介質為液體:式中△P為壓差) 硬密封:≤10-4×閥額定容量.1h(閥額定容量的計算見附表) | |||||||||||||
氣源壓力 | 0.4~0.6MPa | |||||||||||||
連接形式 | 對夾式、法蘭式、管道法蘭按JB79-59標準 | |||||||||||||
適用溫度 | 軟密封-40℃~+180℃;硬密封-40℃~+450℃ | |||||||||||||
球芯轉角 | 90度 | |||||||||||||
流量特性 | 近似等百分比 | |||||||||||||
閥體材料 | A105、F321、F316、WCB、ZG1Cr18NiTi、ZGOCr18NiTi、ZGOOrL7N14MO2 | |||||||||||||
球芯型式 | 部分球帶有V形缺口 | |||||||||||||
閥座材料 | 聚四氟乙烯、不銹鋼司太立硬質合金 | |||||||||||||
基本誤差 | ≤全行程的2%(帶定位器) | |||||||||||||
回差 | ≤全行程的2.0%(帶定位器) | |||||||||||||
死區 | ≤全行程的0.8%(帶定位器) | |||||||||||||
額定流量系數誤差% | ≤±10 | |||||||||||||
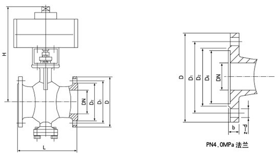
七、外形及連接尺寸:
| 尺寸(mm) | ||||||||||
| 公稱壓力PN(MPa) | 公稱通徑DN(mm) | 對夾連接 | 法蘭連接 | |||||||
| L | D | D | D1 | D2 | D6 | b | z-d | H | ||
| 25 | 102 | 64 | 115 | 85 | 5 | - | 14/16 | 4月14日 | 233 | |
| 40 | 114 | 82 | 145/150 | 110 | 85/84 | - | 16/18 | 4月18日 | 280 | |
| 50 | 124 | 100 | 160/165 | 125 | 100/99 | - | 16/20 | 4月18日 | 362 | |
| 65 | 145 | 118 | 180/185 | 145 | 120/188 | - | 18/20 | 4月18日 | 377 | |
| 80 | 165 | 130 | 195/200 | 160 | 135/132 | - | 20 | 8月18日 | 410 | |
| 1.6 | 100 | 194 | 155 | 215/220 | 180 | 155/150 | - | 20/22 | 8月18日 | 423 |
| 125 | 210 | 185 | 245/250 | 210 | 185/184 | - | 22 | 8月18日 | 436 | |
| 150 | 229 | 216 | 280/285 | 240 | 210/211 | - | 24 | 8-23/8-22 | 653 | |
| 200 | 243 | 264 | 335/340 | 295 | 265/266 | - | 26/24 | 12-23/12-22 | 703 | |
| 250 | 297 | 328 | 405 | 355 | 320/319 | - | 30/26 | 12-25/12-26 | 787 | |
| 300 | 338 | 373 | 460 | 410 | 375/370 | - | 30/28 | 12-25/12-26 | 827 | |
| 25 | 102 | 64 | 115 | 85 | 65 | - | 16 | 4月14日 | 233 | |
| 40 | 114 | 82 | 145/150 | 110 | 85/84 | - | 18 | 4月18日 | 280 | |
| 50 | 124 | 100 | 160/165 | 125 | 100/99 | - | 20 | 4月18日 | 362 | |
| 65 | 145 | 118 | 160/185 | 145 | 120/118 | - | 22 | 8月18日 | 377 | |
| 80 | 165 | 130 | 195/200 | 160 | 135/132 | - | 22-24 | 8月18日 | 410 | |
| 2.5 | 100 | 194 | 155 | 230/235 | 190 | 160/156 | - | 24 | 8-23/8-22 | 423 |
| 125 | 210 | 185 | 270 | 220 | 188/184 | - | 28/26 | 8-25/8-26 | 436 | |
| 150 | 229 | 216 | 300 | 250 | 218/211 | - | 30/28 | 8-25/12-26 | 653 | |
| 200 | 243 | 264 | 360 | 310 | 278/274 | - | 34/30 | 12-25/12-26 | 703 | |
| 250 | 297 | 328 | 425 | 370 | 332/330 | - | 36/32 | 12月30日 | 787 | |
| 300 | 338 | 373 | 485 | 430 | 390/389 | - | 40/34 | 16-30 | 827 | |
| 25 | 102 | 68 | 115 | 85 | 65 | 58 | 16 | 4月14日 | 262 | |
| 40 | 114 | 88 | 145/150 | 110 | 85/84 | 76 | 18 | 4月18日 | 280 | |
| 50 | 124 | 102 | 160/165 | 125 | 100/99 | 88 | 20 | 4月18日 | 362 | |
| 65 | 145 | 122 | 180/185 | 145 | 120/118 | 110 | 22 | 4月18日 | 400 | |
| 80 | 165 | 138 | 195/200 | 160 | 135/132 | 121 | 22/24 | 8月18日 | 603 | |
| 4 | 100 | 194 | 162 | 230/235 | 190 | 160/156 | 150 | 24 | 8月18日 | 616 |
| 125 | 210 | 188 | 270 | 220 | 188/184 | 176 | 28/26 | 8-23/8-22 | 643 | |
| 150 | 229 | 218 | 300 | 250 | 218/211 | 204 | 30/28 | 8-25/8-26 | 685 | |
| 200 | 243 | 285 | 375 | 320 | 282/284 | 260 | 38/34 | 12月30日 | 747 | |
| 250 | 297 | 345 | 445/450 | 384 | 345 | 313 | 42/38 | 12-24/12-33 | 933 | |
| 300 | 338 | 410 | 510/515 | 450 | 408/409 | 364 | 46/42 | 16-34/16-33 | 980 | |
| 25 | 102 | 68 | 135/140 | 100 | 78 | 58 | 22 | 4月18日 | 262 | |
| 40 | 114 | 88 | 165/170 | 125 | 95 | 76 | 24 | 4月23日 | 280 | |
| 50 | 124 | 102 | 175/180 | 135 | 105 | 88 | 26 | 4月23日 | 362 | |
| 65 | 145 | 122 | 200/205 | 160 | 130 | 110 | 28 | 8月23日 | 400 | |
| 80 | 165 | 138 | 210/215 | 170 | 140 | 121 | 30 | 8月23日 | 603 | |
| 6.4 | 100 | 194 | 162 | 250 | 200 | 168 | 1580 | 32 | 8月25日 | 616 |
| 125 | 210 | 188 | 295 | 240 | 202 | 176 | 36 | 8月30日 | 643 | |
| 150 | 229 | 218 | 340/345 | 280 | 240 | 204 | 38 | 8-34 | 685 | |
| 200 | 243 | 285 | 405 | 345 | 300 | 260 | 44 | 12/3412-26 | 747 | |
| 250 | 297 | 345 | 470 | 400 | 352 | 313 | 48 | 12/41/12-36 | 933 | |
| 300 | 338 | 410 | 53, , , 0 | 460 | 412 | 54 | 16-41/16-36 | 980 | ||

八、訂貨時請填寫《規格書》或注明以下內容:
1、產品型號;
2、公稱通徑閥座直徑;
3、公稱壓力;
4、閥體和閥內組件材料;
5、適用溫度;
6、調節方式;
7、雙作用或單作用(單作用請注明氣開式或氣閉式) ;
8、是否帶附件;
9、連接型式。
九、售后服務承諾:
1、我公司所售中偉調節球閥產品在十二個月以內出現質量問題的,負責免費維修。
2、質保期內如我公司產品出現任何質量問題,我公司負責免費維修或更換。
3、質保期內如用戶使用不當,造成產品損壞,我公司負責維修,收取損壞部件成本費。
4、質保期后產品出現質量問題,我公司負責維修,收取損壞部件成本費。
5、如用戶需我公司現場服務,對省內用戶我公司服務人員12小時內到達現場,省外用戶48小時內到達現場。

